Bride tournante creuse
304 L DN Référence A B C D E 16 CF 445016 34 27 7.6 4.5 19.1 35 CF 445035 70 58.7 12.7 6.75 38.2
304 L DN Référence A B C D E 16 CF 445016 34 27 7.6 4.5 19.1 35 CF 445035 70 58.7 12.7 6.75 38.2
304 L DN Référence A B C D E 16 CF 405016 33.8 19 38 30.4 1.5 35 CF 405035 70 38 63 50
304 L DN Référence A B C D E 16 CF 439016 33.8 27 7.6 4.5 6 35 CF 439035 70 58.7 12.7 6.75 6
DN Référence A B C D E 63 321063 75.57 5.33 80 321080 88.27 5.33 100 321100 107.3 5.33 160 321160 164.5 6.99 200 321200
DN Référence A B C D E 63 320063 75.57 5.33 80 320080 88.27 5.33 100 320100 107.3 5.33 160 320160 164.5 6.99 200 320200
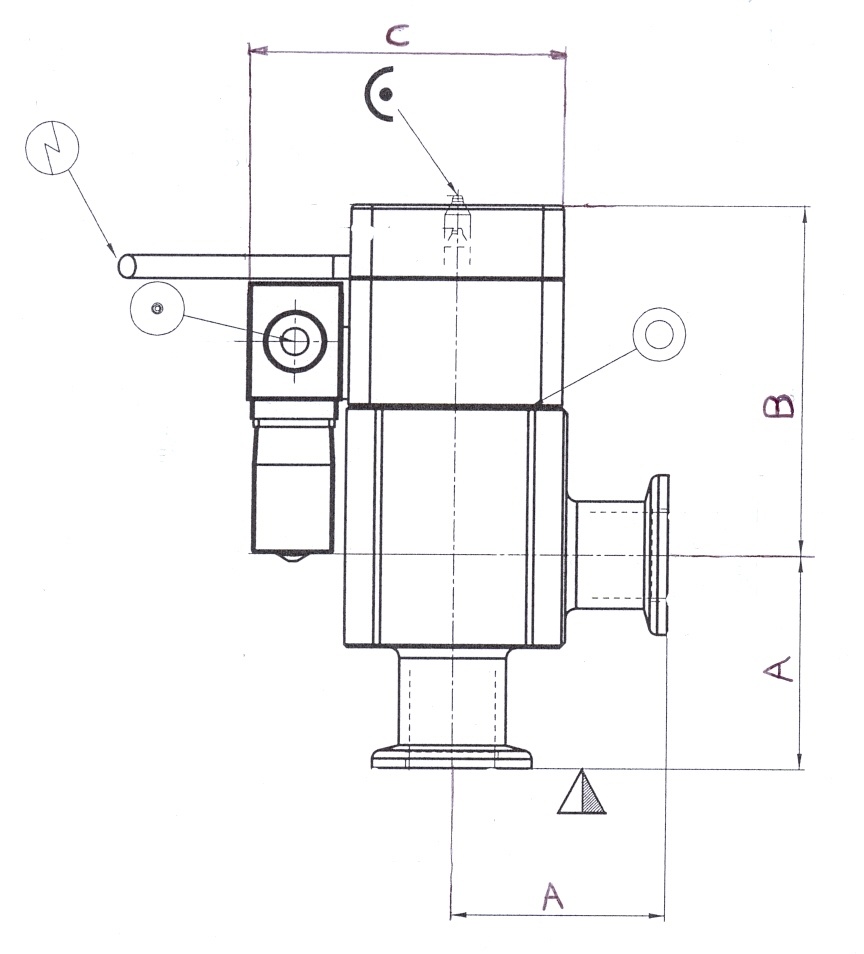
Caractéristiques principales:Corps en alliage léger ou en inoxTAUX DE FUITE:– Boitier, Siège: < 1.10 -9 mbar ls -1 PRESSIONS: 1.10 -8 mbar à 5 bars
DN Référence A B C D E 25/16 150025 60 42 40/16 150040 95 62 40/25 150041 95 62
INOX 304 L DN Référence A B C D E 25 149025 40 22.2 25.4 40 40 149040 55 39.2 42.4 40 50